Regenwasserspeicher zur freien Aufstellung im frostgeschützten Raum
Die Lokhalle Göttingen bietet als ehemalige Lokrichthalle auf einer Gesamtfläche von 9.400 m² aufgeteilt in drei Hallen die ideale Location für alle Arten von Events.
Unser Auftraggeber die GWG Gesellschaft für Wirtschaftsförderung und Stadtentwicklung Göttingen mbH beauftragte das Planungsbüro für technische Gebäudeausrüstung, Krauße Ingenieure aus Göttingen mit der Sanierung der Lokhalle Göttingen.
Bei dem Projekt Lokhallen-Sanierung soll aus Umweltgründen eine Regenwassernutzungsanlage aus Kunststoff im verfügbaren frostgeschützten Raum mit maximal möglichem Nutzvolumen zur Grauwassernutzung eingeplant werden. Denn bei Großevents werden derzeit noch große Trinkwassermengen für die Toilettenspülungen benötigt, die zukünftig durch Regenwasser ersetzt werden sollen.
Im Rahmen der Lokhallen-Sanierung wird ein Teil des Kellerraums (wo später die Regenwasserspeicher eingebaut werden sollen) komplett freigelegt, so dass man idealerweise (je nach Baufortschritt) die Kunststoffbehälter noch vor Einzug der Betondecke mit einem Kran von oben einbringen kann, was aber nicht sicher ist. Alternativ soll zusätzlich eine Vor-Ort-Verschweißung der einzelnen Kunststoff-Bauteile möglich sein und in Betracht gezogen werden.
Auf Basis dieser Ausgangsvoraussetzungen und dem Lastenheft haben das Planungsbüro Krauße Ingenieure im engem Dialog mit dem Kunststoffspezialisten Hopfgartner unterschiedliche Lösungsalternativen diskutiert und die wirtschaftlichste Lösung als Ausgangsbasis für die öffentliche Ausschreibung ausgewählt.
Das Ingenieurbüro Krauße hat anschließend die Ausschreibung auf Basis von zwei rechteckigen Regenwasserspeichern aus Kunststoff PE-HD mit 35m3 und 25m3 Speichervolumen erstellt. Da die zeitliche Terminierung der Regenwasserspeicherlieferung in der Sanierungsausführung vor oder nach Deckenfertigstellung ungeklärt war, musste Ingenieurbüro Krauße eine Ausschreibung sowohl für die Lieferung eines komplett montierten Regenwasserspeichers frei Baustelle als auch für eine Vor-Ort-Montage durch Verschweißen erstellen.
In einem öffentlichen Vergabeverfahren über eine Rechtsanwaltskanzlei wurde die Ausschreibung durchgeführt.
Das Angebot von Hopfgartner hat sich bei der Vergabe erfolgreich durchgesetzt.
Für das Sanierungsprojekt Lokhalle mit Regenwasserspeicher zur freien Aufstellung im frostgeschützten Raum sind mehrere Kundenziele bei der Umsetzung zu erfüllen:
- Entwicklung und Bau von zwei Sonderbehältern aus Kunststoff mit individueller Anpassungsmöglichkeit an die Vor-Ort-Situation im sanierten Kellerraum
- Berücksichtigung der vorhandenen Einbringungsmaße von oben zwischen den Stahlträgern bei Komplettlieferung der Behälter
- Möglichkeiten für Kosteneinsparungen analysieren und realisieren
- Optimale Raumausnutzung und Volumenoptimierung durch angepasste Behälterabmessungen (der vorherige Regenwasserspeicher hatte nur 18m 3 Speichervolumen, was bei Großveranstaltungen bei weitem nicht ausreichte)
- Hohe Qualität (keine Korrosion) und lange Lebensdauer der Regenwasserspeicher aus PE-HD
- Möglichst schnelle Umsetzung und Lieferung der beiden Regenwasserspeicherbehälter durch Werkstattfertigung, damit der Speicherbehälter noch vor dem Deckeneinbau bei der Kellersanierung eingebracht werden kann (hohe Kosteneinsparung möglich!)
- Prüffähige Statik der beiden Behälter
- Gewährleistung einer 100%-Dichtheit (Dichtheit aller Schweiß- und Verbindungsnähte)
- Integrierte automatische Füllstandsanzeige mit Anbindung an die zentrale Leittechnik ZLT
- Abmessungen für Transportmöglichkeiten mit LKW berücksichtigen
Das wirtschaftliche Lösungskonzept für die Bauausführung der neuen Regenwasserspeicher für die Lokhalle wird gemeinsam vom Ingenieurbüro Krauße Ingenieure und Hopfgartner unter Berücksichtigung der geplanten Kellersanierung sowie der nachher verfügbaren Raumfläche erstellt. Hopfgartner bringt bei der kunststoffgerechten Auslegung und Behälterdimensionierung sein Konstruktions- und Fertigungs-Knowhow sowie seine hohe Kunststoffkompetenz ein.
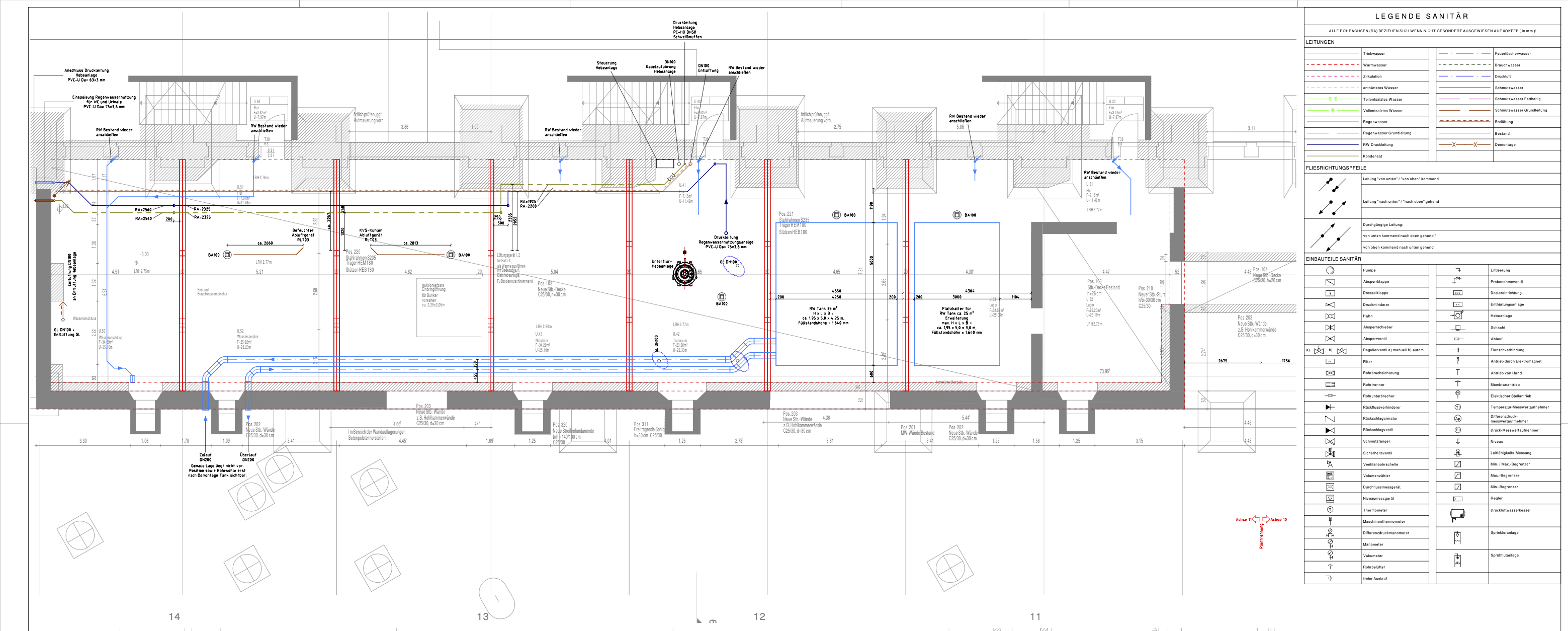
Nach Auftragsvergabe sowie auf Basis der vorliegenden Lokhallensanierungs-Detailplanung (Maßzeichnungen vom Ingenieurbüro Krauße, siehe Bild 1) erfolgt durch den Kunststoffspezialisten Hopfgartner die komplette Regenwasserspeicher-Detailkonstruktion, die maßgenaue Werkstattfertigung nach Rücksprache mit dem Ingenieurbüro sowie die aufwendige Speziallieferung (Sondertransport) der beiden Speicherbehälter und aller erforderlichen Kunststoffbauteile (wie z.B. Überlauf-Anschlussstutzen) an die Baustelle.
Darüber hinaus unterstützen die Hopfgartner-Monteure bei der Kraneinbringung beider Behälter sowie der Herstellung aller erforderlichen Behälterverbindungen und Anschlüsse vor Ort, um die beiden Speicherbehälter in das Gesamtsystem Regenwassernutzanlage zu integrieren.
Zur Sicherstellung einer hohen Behälterstabilität und Verformungssicherheit hat sich Hopfgartner für den Einsatz von praxisbewährten PE-HD Hohlkammerprofilen mit innenliegenden Stahlprofilen von SIMONA AG entschieden.
Der Werkstoff erfüllt alle wesentlichen Anforderungen in Bezug auf Medienbeständigkeit, Druck- und Temperaturbeständigkeit. PE-HD ist aufgrund seiner wachsähnlichen Oberfläche leicht zu reinigen, korrosionsfrei, langlebig und zu 100% recyclingfähig.

Bild 1: Maßzeichnung für Ertüchtigung Lokhalle Göttingen, Untergeschoss Abwasser
Bildquelle: Krauße Ingenieure, Göttingen
Das wirtschaftliche Lösungskonzept für die Bauausführung der neuen Regenwasserspeicher für die Lokhalle in Göttingen wurde von Hopfgartner in enger Abstimmung mit dem Ingenieurbüro Krauße Ingenieure 1:1 umgesetzt.
Die einzelnen Umsetzungsschritte werden hier nochmals aufgezeigt.
1. Planung und Konstruktion der beiden Regenwasserspeicher mit je 35m3 und 25m3 - Nutzvolumen

Bild 2: Maßzeichnung für Regenwasserspeicherbehälter aus Kunststoff PE-HD mit 25m3 Nutzvolumen
Bildquelle: Hopfgartner Kunststoff- und Umwelttechnik GmbH
2. Fachgerechte Werkstattfertigung der beiden Regenwasserspeicher aus Kunststoff PE-HD und Vollfüllung der Behälter mit 24h-Test auf Dichtheit in der Werkstatt vor Auslieferung

Bild 3: Fertiggestellter Regenwasserspeicherbehälter aus Kunststoff PE-HD
Bildquelle: Hopfgartner Kunststoff- und Umwelttechnik GmbH
3. Beladung des Sondertransport-Fahrzeugs von STL Logistik AG mit den beiden Regenwasserspeichern

Bild 4: Beladung des Sondertransport-Fahrzeugs
Bildquelle: Hopfgartner Kunststoff- und Umwelttechnik GmbH

Bild 5: Geladene und gesicherte Regenwasserspeicher auf Sondertransport-Fahrzeug mit 4,6m Breite
Bildquelle: Hopfgartner Kunststoff- und Umwelttechnik GmbH
4. Kraneinbringung der Regenwasserspeicher vor Ort - Lokhalle in Göttingen. Die Regenwasserspeicher hatten zur Einbringung nur 5cm Luft zwischen den beiden Stahlträgern. Eine Challenge, die wir dank dem Einsatz aller Beteiligten sowie der Präzisionsarbeit des Kranführers erfolgreich gemeistert haben.

Bild 6: Kraneinbringung der Regenwasserspeicher vor Ort
Bildquelle: Hopfgartner Kunststoff- und Umwelttechnik GmbH
5. Herstellung aller erforderlichen Verbindungen und Anschlüsse an das Gesamtsystem Regenwassernutzanlage.
Der Regenspeicherüberlauf wurde an das öffentliche Kanalnetz angeschlossen. Der Zulaufanschluss für die Trinkwasserleitung zur Befüllung bei Min-Füllstand wurde hergestellt.
Beide Regenwasserspeicher sind mit einem Überlauf DN 200 verbunden worden. Die integrierte automatische Füllstandsanzeige haben die Monteure für den Anschluss an die zentrale Leittechnik ZLT vorbereitet.

Bild 7: Montage der Verbindungen und Anschlüsse an das Gesamtsystem Regenwassernutzanlage
Bildquelle: Hopfgartner Kunststoff- und Umwelttechnik GmbH
-
Optimale Speichervolumenausnutzung mit insgesamt 60m3
-
Prüffähige Statik für beide Regenwasserspeicherbehälter
-
Hohe Einsparung von kostbarem Trinkwasser durch Nutzung von kostenlosen Regenwasser
-
Hohe Behälterstabilität und Verformungssicherheit durch Einsatz von PE-HD Hohlkammerprofilen mit innenliegenden Stahlprofilen
-
Hohe Kosteneinsparung durch Werkstattfertigung der Behälter und Einbringung vor dem Betondeckeneinzug
-
Thermoplastischer Speicherbehälter aus PE-HD, korrosionsfrei und 100%recyclingfähig
-
Sicherer Transport und Einbringung durch fest integrierte Lasthaken
-
Hohe Betriebssicherheit durch fachgerechte Verschweißung nach DVS-Richtlinie 2205-1. Dichtheitsnachweis durch Dichtheitsprüfung mittels
-
Funkeninduktionsprüfung sowie Vollfüllung der Behälter mit 24h Test auf Dichtheit in der Werkstatt vor Auslieferung
-
Dauerhafte Funktionssicherheit und Dichtheit durch Kunststoff PE-HD gewährleistet
-
Integrierte, automatische Füllstandsmessung mit magnetischen Schaltpunkten und Anschlussmöglichkeit an die ZLT (zentrale Leittechnik)
Bei dem Projekt Lokhallen-Sanierung soll aus Umweltgründen eine Regenwassernutzungsanlage aus Kunststoff im verfügbaren frostgeschützten Raum mit maximal möglichem Nutzvolumen zur Grauwassernutzung eingeplant werden.
GWG Gesellschaft für Wirtschaftsförderung und Stadtentwicklung Göttingen mbH, Göttingen
Regenwasserspeicher zur freien Aufstellung im frostgeschützten Raum
30. December 2022
Schlindwein, Bruchsal (Komplettanbieter für industriellen Anlagenbau, Gäudetechnik, Service & Wartung)
Kühlwasserbehälter
GWG Gesellschaft für Wirtschaftsförderung und Stadtentwicklung Göttingen mbH, Göttingen
Regenwasserspeicher zur freien Aufstellung
EKK Anlagentechnik GmbH & Co. KG
Umrüstung KTL-Tauchbecken
LBU Lobenhofer Bau und Umwelt GmbH
Mobiler Deponie-Sickerwasserspeicher
AGR Abfallentsorgungs-Gesellschaft Ruhrgebiet mbH
Mobile Deponiegasstation
STRABAG AG
Kühlwasserbecken aus PE100
STRABAG AG
STRABAG AG
Deponie Morgenstern Landkreis Goslar
Deponie Morgenstern Landkreis Goslar
Nabaltec AG
Nabaltec AG
BMW-Werk Regensburg
BMW-Werk Regensburg
Automobilindustrie